売中古住宅
【糸満市武富中古住宅】
【所在】糸満市武富
【土地】585.13㎡(177.00坪)
【建物】83.17㎡(25.15坪)
【交通】武富ハイツバス停 徒歩5分
【価格】3,250万円
武富ハイツ内の中古住宅!駐車場は4台可能です!敷地の西側が傾斜地(急傾斜地崩壊危険地域)になっており有効面積(実際に使用できそうな土地面積)は177.32㎡(59.63坪)になります。
| 築年月 | 昭和59年6月 | 
| 構造・規模 | 鉄筋コンクリートブロック造2階建 | 
| 土地面積 | 585.13㎡ / 177.00坪(有効面積:177.32㎡ / 53.63坪) | 
| 建物面積 | 83.17㎡ / 25.15坪 | 
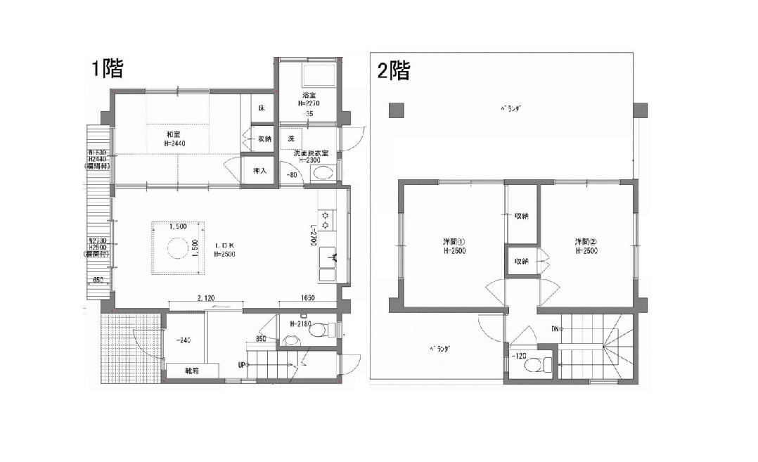
| 間取り | 3LDK | 
| 土地権利 | 所有権 | 
| 用途地域 | 1種低層 | 
| 建ぺい率 | 50% | 
| 容積率 | 100% | 
| 駐車場 | 4台 | 
| 現況 | 空家 | 
| 引渡し | 相談 | 
| 情報更新日 | 2023.11.24 | 
| 備考 | ■いつでも内覧できます | 
お電話でのお問合せ 098-884-8742
 
メールでのお問合せ   ★は必須項目です
 
 
 
 
 
 
 
 
 
 
 
 
 
 
 
 
 
 
 
 
 
 
 
 
 
 
 
 
 
 
 
 
 
 
 
 
 
 
 
 
 
 
 
 
